Królewskie Miasto Darłowo      Darłowo na Facebook'u  Darłowo na YouTube  Radio Koszalin  Pogoda

Darłowo - Darłówko idealny duet do wypoczywania
linia ozdobna
Królewskie Miasto Darłowo linia ozdobna

Koncepcja zagospodarowania terenu Parku rekreacji przy ulicy Traugutta w Darłowie

Darłowo, 18 maja 2016 roku

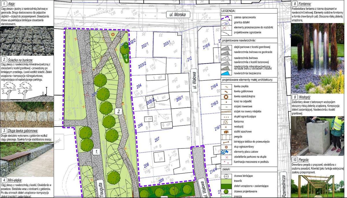
Przedstawiamy Państwu projekt koncepcji zagospodarowania terenu Parku rekreacji przy ul. Traugutta, stworzony przez biuro projektowo Compono ze Szczecina. Niniejszy projekt będzie konsultowany 19 maja (czwartek), o godz. 15.00 w Urzędzie Miejskim w Darłowie, (sala nr 22) przez Burmistrza Miasta Darłowo z radnymi Rady Miejskiej, członkami Rady Osiedla Centrum oraz mieszkańcami miasta. Zainteresowanych serdecznie zapraszamy.

 

Krótko o samej koncepcji:

 

- układ komunikacyjny –

- Zakłada się zachowanie istniejącego układu komunikacyjnego, z dojazdem ulicą Traugutta od ulicy Morskiej. Obecny ciąg komunikacyjny ma zostać poszerzony do szerokości 4,5 m.
- Zakłada się budowę parkingu dla 9 samochodów osobowych od strony ulicy Wałowej.
- Zakłada się utrzymanie komunikacji pieszej w aktualnym przebiegu.
- Proponuję się ciąg pieszy w formie alei wzdłuż południowej granicy posesji przy ul. Wałowej oraz nowy układ ścieżek prowadzący do projektowanych placów zabaw i stref relaksu.

- nawierzchnie –

- Główne ciągi piesze wykonane mają zostać z kostki granitowej ciętej płomieniowanej. Większość ciągów pieszych zaprojektowano natomiast z wykorzystaniem nawierzchni mineralno-żywicznej w kolorze beżowym z obrzeżami z kostki granitowej.
- Dojazd od ul. Morskiej szer. 4,5 wybudowany zostanie z nawierzchnią żwirową na geokracie. 
- Projektowany parking wybudowany zostanie z kostki betonowej.

- place zabaw –

- Zakłada się wybudowanie dwóch stref zabaw dla dzieci: z urządzeniami dla dzieci młodszych i starszych. Obie strefy mają zostać ogrodzone, wyposażone w małą architekturę, a znajdujące się w niej urządzenia zabawowe zamontowane zostaną na tzw. nawierzchni bezpiecznej.

- elementy małej architektury –

- Na terenie całego parku zaprojektowano elementy małej architektury o charakterze parkowym w postaci ławek, koszy, stoliki do gry w szachy, wodopoju, słupków ograniczających, słupa ogłoszeniowego, pergoli i stojaków rowerowych. 
- Projektuje się również miejsce dla wodopoju oraz małych form fontanny.

- oświetlenie –

- Zakłada się wymianę istniejących słupów i opraw oraz lokalizację nowych energooszczędnych o charakterze oświetlenia parkowego. Niektóre elementy projektu takie jak np. wzdłuż ciągu komunikacyjnego przy parkingu i pergoli wyposażone będą dodatkowo w punkty oświetleniowe montowane w posadzce.

- zieleń –

- Projekt zakłada rekultywację istniejących trawników, nasadzenie drzew i krzewów ozdobnych oraz nasadzenie zieleni zadarniającej i pnączy przy pergoli i planowanych siedziskach gabionowych.

- Przedstawione rysunki wskazują przykłady rozwiązań zaproponowanych przez biuro projektowe, nie są to jednak ostateczne rozwiązania. Istnieje możliwość ich zmiany w trakcie uzgodnień projektu na etapie wydawania decyzji zatwierdzającej projekt budowlany i udzielającej pozwolenia na budowę.

 

Niniejsza koncepcja jest zgodna z zapisami Miejscowego Planu Zagospodarowania Przestrzennego dla terenu objętego przyszłą inwestycją w naszym mieście.

 

Zapraszamy na konsultacje.

19 maja (czwartek), godz. 15:00, Urząd Miejski w Darłowie.

Tomasz Breszka - Referat Inwestycji UM Darłowo

Koncepcja zagospodarowania terenu Parku rekreacji przy ulicy Traugutta w DarłowieKoncepcja zagospodarowania terenu Parku rekreacji przy ulicy Traugutta w DarłowieKoncepcja zagospodarowania terenu Parku rekreacji przy ulicy Traugutta w Darłowie

Zobacz nas na Facebook'u

Polityka prywatności

Strona korzysta z plików cookie w celu realizacji usług zgodnie z Polityką Cookies. Możesz określić warunki przechowywania lub dostępu do cookie w Twojej przeglądarce lub konfiguracji usługi.

 

Zgadzam się Nie, chcę dowiedzieć się więcej