Królewskie Miasto Darłowo      Darłowo na Facebook'u  Darłowo na YouTube  Radio Koszalin  Pogoda

Darłowo - Darłówko idealny duet do wypoczywania
linia ozdobna
Królewskie Miasto Darłowo linia ozdobna

Gimnazjum w Darłowie przy Franciszkańskiej otrzyma wielofunkcyjne boisko sportowe

Darłowo, 25 sierpnia 2010 roku

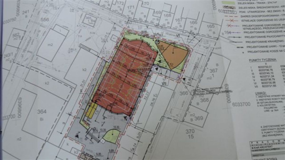
Rozstrzygnięto przetarg nieograniczony na budowę wielofunkcyjnego boiska sportowego z poliuretanu wraz z zagospodarowaniem terenu w Miejskim Gimnazjum im. Stanisława Dulewicza w Darłowie.

 

Na przetarg wpłynęły cztery oferty. Wygrała firma NOVA SPORT ze Szczecina, która zaoferowała najniższą cenę - (453.635 zł) za wybudowanie zespołu sportowego. W ramach inwestycji zostanie zbudowane boisko wielofunkcyjne, które umożliwi młodzieży grę: w piłkę ręczną, piłkę siatkową, tenisa oraz koszykówkę na dwóch boiskach jednocześnie. Ponadto zostanie wybudowana rzutnia do pchnięcia kulą i skocznia w dal oraz wygrodzona dwutorowa bieżnia lekkoatletyczna. W skład inwestycji wchodzi również wymiana ogrodzenia wraz z piłkochwytami, budowa chodników i placu apelowego z kostki betonowej oraz odwodnienie terenu. Planowany termin zakończenia inwestycji 30 październik 2010 r.

 

L. Walkiewicz

Gimnazjum w Darłowie przy Franciszkańskiej otrzyma wielofunkcyjne boisko sportowe

Zobacz nas na Facebook'u

Polityka prywatności

Strona korzysta z plików cookie w celu realizacji usług zgodnie z Polityką Cookies. Możesz określić warunki przechowywania lub dostępu do cookie w Twojej przeglądarce lub konfiguracji usługi.

 

Zgadzam się Nie, chcę dowiedzieć się więcej